VENTE
TERRAIN
L'HÔPITAL-DU-GROSBOIS

Terrain à vendre à L'hôpital-du-grosbois

  • 551.00 m²
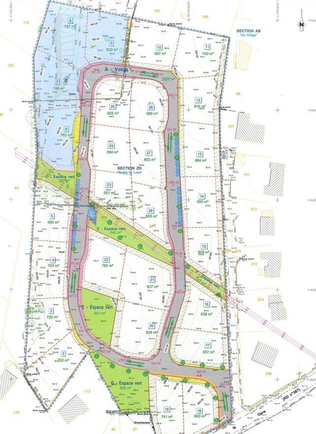
Dans la commune de L'hôpital du Grosbois, charmant village situé à 6 min de MAMIROLLES et 10 min de VALDAHON, dans un environnement calme, et verdoyant. Lotissement composé de 27 parcelles à bâtir non viabilisées comprises entre 551 m² et 838 m².  Parcelles vendues 110 € / m².  Pour plus de renseignements, merci de contacter l'étude notariale.  Les informations sur les risques auxquels ce bien est exposé sont disponibles sur le site Géorisques : www. georisques.gouv.fr
Pour obtenir des informations sur ce terrain à la vente, contactez nous avec le formulaire ou par téléphone.
Cette fiche est-elle de bonne qualité ?
60 610 maximum
Contacter
HEXAGONE Notaires CREUSY et associés Baume les Dames
pour plus d'informations et sans engagements.
Faites en profiter vos amis !

Terrain à vendre

Prix et financement
Prix (honoraires inclus) : 60 610 €
Honoraires charge vendeur nc
Informations complémentaires
Réf du bien : 25017-1638
Date de publication : 31/03/2026
Vues détail : 7
Contacts tél : 0
Contacts @ : 0
logement extrêmement performant
A
consommation
(énergie primaire)
0
kWh/m2/an
émissions
0*
kgCO2/m2/an
B
C
D
E
F
G
passoire
énergétique
logement extrêmement peu performant
* Dont émissions de gaz à effet de serre
peu d'émissions de CO2
A
B
0
kgCO2/m2/an
C
D
E
F
G
émissions de CO2 très importantes
Les informations sont données à titre indicatif veulliez prendre connaissance des conditions générales d'utilisation.
L'acquéreur peut réaliser un investissement locatif sur ce logement.